新格尔时刻与您分享消息
“ 将想法与焦点与您一起共享”
大家好,今天我们迎来了新格尔门窗软件门窗CC的版本更新,具体的更新内容我们一起来看看吧。
新功能
1.增加变量‘订单面积’,可应用于erp计件工资的数量一栏。
CC软件里的面积变量是会同步到ERP计件工资模块的‘面积’变量的。

之前的版本上,无论CC里面积有没有考虑最小面积,在ERP计件工资里填写的‘面积’都是CC的实际面积



但我们接到需求,部分客户希望当CC面积考虑到最小面积时,计件工资的数量里的‘面积’也同样考虑最小面积。解决方案:软件里增加变量‘订单面积’。需要考虑最小面积的客户,可以在CC面积统计公式里设置‘面积(包含最小面积)’

然后在ERP计件工资的数量里填写‘订单面积’,

下单之后计件工资里就会根据实际面积与最小面积比较,取最大值。

2.新增上下提拉扇窗型
(1)新增上下提拉扇图标

(2)点击扇高数字,可以修改推拉方向(上提升、固定、下提升)和窗扇高度和所在轨道。注:所在轨道修改只改变大样图上视觉效果,不影响算料

(3)窗扇上右击可选择扇数,目前接到的需求只有2扇和3扇,所以仅支持2扇和三扇提升。

(4)上提升、固定和下提升的扇竖料用料不一样时,支持分别设置。用法如下:竖扇料用途 写竖通用
型材搭接方案里,

可设置有效条件开向

计算结果如下:

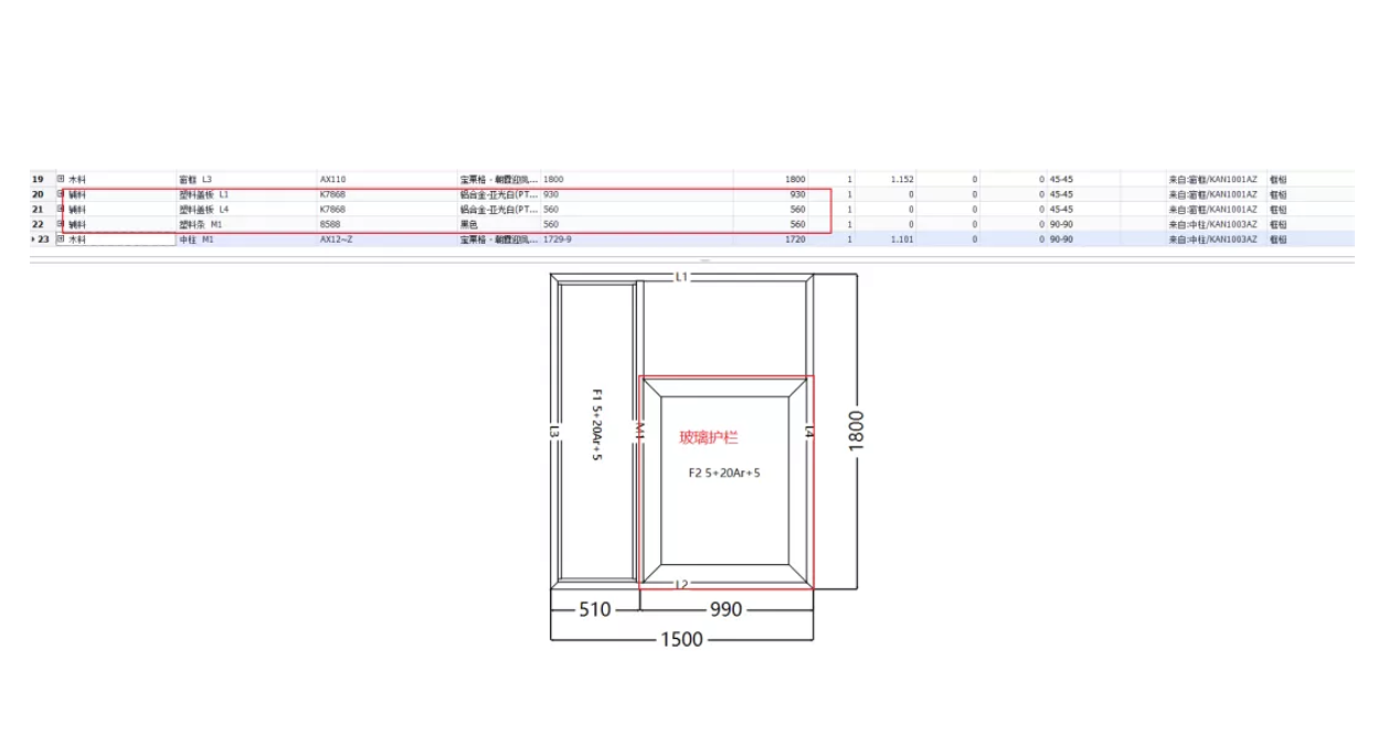
3.定制:玻璃护栏增加参数:不带上护栏框。勾选上之后,护栏框上框料不显示,也不出料(非通用功能)


4.定制:玻璃护栏框内空部分算料需求(非通用功能)
需求:玻璃护栏是不填满整个框的,但是没有玻璃护栏的内空部分,又需要出料

方案:将需要出的料写在框梃辅料里,新增变量‘护栏上内空’、‘中柱护栏上内空’,分别应用于外框辅料和中柱辅料,写法如下:


效果如下图:

优化与修复
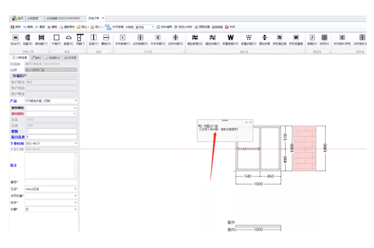
优化:当录入公式有问题时,管理员账号下单也提醒
之前逻辑是,公式有问题,员工账号下单会提示,管理员账号下单不提示。但我们发现这样的逻辑是不正确的,公式录入有问题应当改正公式,而不是去掉错误提示。所以此版本修正了逻辑。

2.设备对接导出txt文档型材颜色后加 订单号

3.优化:报价详情里,报价名称相同,单价不同,在报价表里也不合并

4.优化:条件支持中文大于小于号
中文的大于小于号和英文的大于小于号在CC软件里面是很难肉眼区分的,即使我们要求输入公式符号必须为英文状态,也会有误输入中文符号导致条件不识别的情况。此版本对此做了优化,使输入中文的大于小于号时也能识别。

5.修复当框压线计算面设置为0时,压线长度计算错误的问题
尽管我们反复要求材料特别是压线计算面不可以设置为0,且软件里也会弹出提示框,仍然阻止不了客户将压线计算面设置为0,导致计算错误的问题。我们针对框压线计算面为0的情况做了优化,尽可能避免如下图出现的压线计算错误问题。


6.下单格式可作为连接件有效条件
注:目前仅对连接件生效,对方管和转角无效。


7.(1)开孔型材的下拉框里面增加:构件类型

(2)由于有些系列比较特殊,这些特殊系列在接口传值的时候和普通系列不一样,所以需要增加系列的特殊标识。所以在型材系列信息的右击属性栏里面增加:特殊打孔系列的勾选项,默认不勾选,同时把字段存储在数据库中

8.定制:大样图上增加玻璃护栏高度标线,且支持修改(非通用功能)

9.增加外平推开向的锁高显示

10.经销商下单界面右边订单信息栏拉宽
11.修复组合框五金数量根据排水孔数量出,结果不正确的问题
12.排水孔重复位置筛选条件增加打孔角度。
13.修复复制订单没有生产环节的问题
14.定制:贝克洛增加返回所有经销商名称的接口
15.设备导出文档优化
16.修复排水孔‘竖中柱左右两端定值’条件下下框料顺时针不生效的问题
17.飞翔设备接口增加数据
18.修复方管料用作转角料的时候参数同步错误的问题
19.优化二阶圆弧等分标线重叠的问题
20.修复‘窗型图上显示logo’参数开启但未上传公司logo时画图报错的问题
21.修复玻璃为横板或者竖版的时候压线多出一倍的问题
22.排水孔有效条件‘分隔宽’定义统一更正为标线尺寸
23.修复二阶连体圆弧下单报错的问题
24.修复‘室内外颜色一致时,显示室外色/室内色’参数不生效的问题
25.修复产品品牌设置界面显示异常的问题
26.修复方管偏移不生效的问题(修正为:方管横通,上下方管可随意偏移;竖通,左右方管可随意偏移。斜连接没有偏移的情况)
27.修复强制匹配转向框底框时材料计算错误的问题
28.修复横中柱中柱到底不生效的问题
29.修复CC组单模式在成品仓库里‘合并待出库’后,ERP和CC里找不到组单的问题
30.修复从经销商端复制过来的订单,点击订单日志查看详情报错的问题
31.组合框订单审查逻辑优化(计算方式分框时,分框判断)
今天更新的内容有些多,如果看不过来有不懂的地方,可以到我们新格尔门窗软件的官网给我们留言,我们会及时解答的哦。
2021-09-16 17:07:58 thinker 阅读量:1272
大家好,今天我们迎来了新格尔门窗软件门窗CC的版本更新,具体的更新内容我们一起来看看吧。
新功能
1.增加变量‘订单面积’,可应用于erp计件工资的数量一栏。
CC软件里的面积变量是会同步到ERP计件工资模块的‘面积’变量的。

之前的版本上,无论CC里面积有没有考虑最小面积,在ERP计件工资里填写的‘面积’都是CC的实际面积



但我们接到需求,部分客户希望当CC面积考虑到最小面积时,计件工资的数量里的‘面积’也同样考虑最小面积。解决方案:软件里增加变量‘订单面积’。需要考虑最小面积的客户,可以在CC面积统计公式里设置‘面积(包含最小面积)’

然后在ERP计件工资的数量里填写‘订单面积’,

下单之后计件工资里就会根据实际面积与最小面积比较,取最大值。

2.新增上下提拉扇窗型
(1)新增上下提拉扇图标

(2)点击扇高数字,可以修改推拉方向(上提升、固定、下提升)和窗扇高度和所在轨道。注:所在轨道修改只改变大样图上视觉效果,不影响算料

(3)窗扇上右击可选择扇数,目前接到的需求只有2扇和3扇,所以仅支持2扇和三扇提升。

(4)上提升、固定和下提升的扇竖料用料不一样时,支持分别设置。用法如下:竖扇料用途 写竖通用
型材搭接方案里,

可设置有效条件开向

计算结果如下:

3.定制:玻璃护栏增加参数:不带上护栏框。勾选上之后,护栏框上框料不显示,也不出料(非通用功能)


4.定制:玻璃护栏框内空部分算料需求(非通用功能)
需求:玻璃护栏是不填满整个框的,但是没有玻璃护栏的内空部分,又需要出料

方案:将需要出的料写在框梃辅料里,新增变量‘护栏上内空’、‘中柱护栏上内空’,分别应用于外框辅料和中柱辅料,写法如下:


效果如下图:

优化与修复
优化:当录入公式有问题时,管理员账号下单也提醒
之前逻辑是,公式有问题,员工账号下单会提示,管理员账号下单不提示。但我们发现这样的逻辑是不正确的,公式录入有问题应当改正公式,而不是去掉错误提示。所以此版本修正了逻辑。

2.设备对接导出txt文档型材颜色后加 订单号

3.优化:报价详情里,报价名称相同,单价不同,在报价表里也不合并

4.优化:条件支持中文大于小于号
中文的大于小于号和英文的大于小于号在CC软件里面是很难肉眼区分的,即使我们要求输入公式符号必须为英文状态,也会有误输入中文符号导致条件不识别的情况。此版本对此做了优化,使输入中文的大于小于号时也能识别。

5.修复当框压线计算面设置为0时,压线长度计算错误的问题
尽管我们反复要求材料特别是压线计算面不可以设置为0,且软件里也会弹出提示框,仍然阻止不了客户将压线计算面设置为0,导致计算错误的问题。我们针对框压线计算面为0的情况做了优化,尽可能避免如下图出现的压线计算错误问题。


6.下单格式可作为连接件有效条件
注:目前仅对连接件生效,对方管和转角无效。


7.(1)开孔型材的下拉框里面增加:构件类型

(2)由于有些系列比较特殊,这些特殊系列在接口传值的时候和普通系列不一样,所以需要增加系列的特殊标识。所以在型材系列信息的右击属性栏里面增加:特殊打孔系列的勾选项,默认不勾选,同时把字段存储在数据库中

8.定制:大样图上增加玻璃护栏高度标线,且支持修改(非通用功能)

9.增加外平推开向的锁高显示

10.经销商下单界面右边订单信息栏拉宽
11.修复组合框五金数量根据排水孔数量出,结果不正确的问题
12.排水孔重复位置筛选条件增加打孔角度。
13.修复复制订单没有生产环节的问题
14.定制:贝克洛增加返回所有经销商名称的接口
15.设备导出文档优化
16.修复排水孔‘竖中柱左右两端定值’条件下下框料顺时针不生效的问题
17.飞翔设备接口增加数据
18.修复方管料用作转角料的时候参数同步错误的问题
19.优化二阶圆弧等分标线重叠的问题
20.修复‘窗型图上显示logo’参数开启但未上传公司logo时画图报错的问题
21.修复玻璃为横板或者竖版的时候压线多出一倍的问题
22.排水孔有效条件‘分隔宽’定义统一更正为标线尺寸
23.修复二阶连体圆弧下单报错的问题
24.修复‘室内外颜色一致时,显示室外色/室内色’参数不生效的问题
25.修复产品品牌设置界面显示异常的问题
26.修复方管偏移不生效的问题(修正为:方管横通,上下方管可随意偏移;竖通,左右方管可随意偏移。斜连接没有偏移的情况)
27.修复强制匹配转向框底框时材料计算错误的问题
28.修复横中柱中柱到底不生效的问题
29.修复CC组单模式在成品仓库里‘合并待出库’后,ERP和CC里找不到组单的问题
30.修复从经销商端复制过来的订单,点击订单日志查看详情报错的问题
31.组合框订单审查逻辑优化(计算方式分框时,分框判断)
今天更新的内容有些多,如果看不过来有不懂的地方,可以到我们新格尔门窗软件的官网给我们留言,我们会及时解答的哦。